Wysoki standard Piękne, w pełni wyposażone

Mieszkanie na sprzedaż
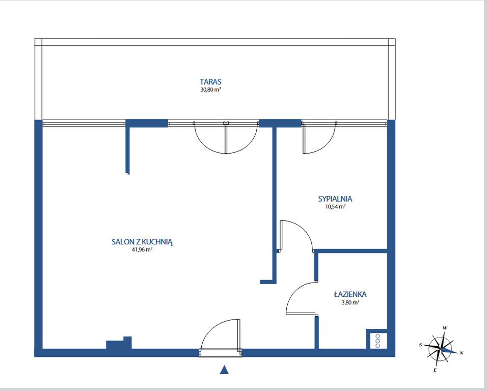
1 097 850,00 PLN , Pow. 56,30 m2
Drukuj ofertę
Drukuj ofertę
Typ nieruchomości:
Mieszkanie
Powierzchnia:
56,30 m2
Typ transakcji:
sprzedaż
Liczba pokoi:
2
Lokalizacja:
Warszawa Wilanów , Aleja Rzeczypospolitej
Rok budowy:
2009
Piętro:
0 na 4
Numer oferty:
34964545002
Cena za m2:
19 500,00 PLN
Kupujący nie płaci prowizji!

EN – full English version below – contact us anytime!

Z przyjemnością prezentuję Państwu ofertę sprzedaży wyjątkowego, 2-pokojowego mieszkania z przestronnym salonem o powierzchni 32 m², z którego prowadzi wyjście na duży taras o powierzchni 35 m².
Wnętrze mieszkania jest jasne, słoneczne i starannie urządzone. Drewniane podłogi, naturalne światło i dobrze dobrane kolory sprawiają, że przestrzeń jest spójna i wygodna. Zastosowano wysokiej jakości materiały i sprzęt, obecne w każdym elemencie wyposażenia. Układ mieszkania jest przemyślany, daje poczucie przestrzeni i porządku.
Osiedle położony jest w jednej z najbardziej cenionych i prestiżowych części Warszawy – w centralnej części Miasteczka Wilanów, w uporządkowanej, zielonej przestrzeni z zabudową o wysokim standardzie i starannie zaplanowaną infrastrukturą.


ATUTY OFERTY

Przestronny salon z kuchnią i wyjściem na taras
35 m² tarasu z widokiem na zieleń
• Jasne, funkcjonalne wnętrze, wysokiej jakości materiały
• Osiedle kameralne, monitorowane, z zielonym patio
• Lokalizacja zapewnia pełną infrastrukturę – w najbliższym otoczeniu znajdują się sklepy, szkoły, przedszkola, restauracje, tereny zielone i komunikacja miejska.

Centralną częścią mieszkania jest przestronny, dobrze doświetlony salon o powierzchni 32 m². To przestrzeń, w której łatwo poczuć się swobodnie – zarówno w ciągu dnia, jak i wieczorem. Wygodna sofa, nastrojowe oświetlenie i duże przeszklenia z wyjściem na taras tworzą atmosferę, która sprzyja codziennemu relaksowi.
Kuchnia z wyspą i granitowym blatem jest spójnie wkomponowana w część dzienną. Całość dopełnia zabudowa z wysokiej klasy sprzętami AGD – funkcjonalna i estetyczna.
Tuż przy dużych oknach, obok aneksu kuchennego, znajduje się stół z czterema krzesłami – miejsce na codzienne posiłki z widokiem na taras i wewnętrzne patio.
Z salonu i sypialni możesz wyjść bezpośrednio na taras.
To Twoja prywatna strefa relaksu. Wypij poranną kawę, poczytaj książkę, posłuchaj śpiewu ptaków – bez wychodzenia z domu.
Sypialnia ma 10 m² i została urządzona w stonowanej, neutralnej kolorystyce. Znajduje się w niej duże łóżko z tapicerowanym zagłówkiem oraz dwie szafki nocne z eleganckimi lampami. Dzięki wyjściu na taras i dużym oknom wnętrze jest jasne i przyjemne o każdej porze dnia.
Przestronna łazienka z wanną, wykończona eleganckim trawertynem, wyposażona w armaturę Villeroy & Boch dopełnia całości i gwarantuje wysoki komfort codziennego użytkowania.
W salonie, tuż przy drzwiach wejściowych, znajduje się zabudowa z pojemnymi szafami wzdłuż jednej ściany. Fronty wykończone są szkłem, co optycznie powiększa przestrzeń i dobrze komponuje się z resztą wnętrza.

LOKALIZACJA
Mieszkanie znajduje się w sercu nowoczesnej, prestiżowej dzielnicy Warszawy – Miasteczko Wilanów.
To harmonijnie zaprojektowana część Wilanowa, zdominowana przez niską zabudowę, szerokie ulice, rozległe pasaże spacerowe i pełną infrastrukturę miejską.
Szkoły i przedszkola w najbliższym otoczeniu (do 1 km)
W okolicy znajduje się wiele renomowanych szkół i przedszkoli:
  • Szkoła Podstawowa nr 400 (al. Rzeczpospolitej 23B) – ok. 200 m – nowoczesna, publiczna szkoła z dobrą renomą.
  • Szkoła Podstawowa Numer Jeden – ok. 300 m – prywatna placówka z ofertą językową i sportową.
  • The British Primary School of Wilanów (ul. Hlonda 12) – ok. 600 m – renomowana szkoła międzynarodowa z brytyjskim programem nauczania.
  • Willy-Brandt-Schule (ul. Ledóchowskiej 3) – ok. 800–1000 m – niemieckojęzyczna szkoła podstawowa i średnia.
  • Hero!Academy – nowoczesne przedszkole przy al. Rzeczpospolitej 1 – 100 m od mieszkania.
  • Dodatkowo w promieniu 5–10 minut spacerem funkcjonuje wiele innych żłobków i przedszkoli prywatnych (np. Montessori, przedszkola językowe).
Centra handlowe i sklepy
  • Royal Wilanów – eleganckie centrum usługowo-handlowe z kawiarniami, restauracjami, butikami, klubem fitness, aptekami i placem zabaw – znajduje się ok. 1 km (15 minut spacerem).
  • Wilanów Park – nowoczesne, wielofunkcyjne centrum handlowo-rozrywkowe z hipermarketem Auchan, restauracjami i strefą rekreacyjną – w budowie, powstaje w promieniu 400–500 m od mieszkania.
  • Lidl, Żabka, Rossmann, Panda Market (azjatycki), piekarnie i delikatesy – wszystkie w odległości 100–300 m, dostępne w zasięgu 2–5 minut spaceru.
  • W bezpośrednim sąsiedztwie inwestycji, zaledwie 400–500 metrów od mieszkania, powstaje nowoczesne centrum handlowe Wilanów Park. Będzie to wielofunkcyjny kompleks z hipermarketem Auchan, licznymi sklepami, restauracjami, kawiarniami, salami fitness oraz przestrzenią rekreacyjną z publicznym parkiem i placami zabaw.
    Zakończenie budowy planowane jest na 2028 rok – inwestycja ta znacząco podniesie komfort codziennego życia mieszkańców, oferując dostęp do pełnej oferty handlowo-usługowej i rekreacyjnej w zasięgu kilku minut spacerem.
Tereny zielone i rekreacyjne
  • Park przy Osi Królewskiej – elegancki miejski park z alejkami spacerowymi, fontannami i zielenią – 500–700 m.
  • Wilanów Park (w budowie) – planowany teren zielony o pow. ponad 20 000 m² z boiskami, strefą piknikową i placami zabaw – 400–500 m.
  • Park Ostoja Wilanów – półprywatny park osiedlowy z zielenią, jeziorkami i alejkami spacerowymi – 300 m.
  • Ogród Botaniczny PAN i Las Kabacki (Powsin) – jeden z największych terenów zielonych w Warszawie – dostępny rowerem lub komunikacją miejską w 15–20 minut.
Place zabaw i atrakcje rodzinne
  • Place zabaw osiedlowe – dostępne tuż przy budynku i na dziedzińcach sąsiednich osiedli.
  • Karuzela Zabaw (kryta sala zabaw) – 150 m.
  • Fikołki Wilanów – rozbudowana sala zabaw z tyrolką i kącikiem malucha – 200 m.
  • Park Jurajski i Ogród Jordanowski – większe place zabaw i rodzinne strefy rekreacji – w promieniu 1–2 km.
Dlaczego ta lokalizacja jest wyjątkowa?
  • Idealne połączenie miejskiego komfortu z zielonym otoczeniem
  • Doskonała infrastruktura edukacyjna i handlowa na wyciągnięcie ręki.
  • Przemyślana urbanistyka – szerokie ulice, ścieżki rowerowe, parki
  • Bliskość obwodnicy i komunikacji miejskiej (tramwaje i autobusy) zapewnia łatwy dojazd do centrum Warszawy, lotniska i innych dzielnic
  • Idealna lokalizacja dla rodzin z dziećmi, osób aktywnych i szukających spokojnego miejsca w nowoczesnym otoczeniu

KOMUNIKACJA
Mieszkanie znajduje się w bardzo dobrze skomunikowanej części Wilanowa. Najbliższe przystanki autobusowe oddalone są o zaledwie 200–500.
Najbliższa stacja metra to Imielin do której można dojechać autobusami: 163, 217, 319 w ciągu 7-9 minut. Autobus linii 217, zapewnia dojazd do stacji metra Wilanów (czas przejazdu: 15–18 minut).
W promieniu 600–800 metrów dostępne są także linie autobusowe: 116, 163, 164, 251, 317, 319 oraz 180, 200, 139, 130, N31, N81 umożliwiające wygodny dojazd do różnych części Warszawy.
Zaledwie 400 metrów dzieli mieszkanie od przystanku tramwajowego przy ul. Branickiego, skąd odjeżdżają linie 14 i 16 – bezpośrednio do centrum miasta.

W dzisiejszych realiach, gdy niemal każdy korzysta z samochodu – ogromnym udogodnieniem jest bliskość trasy ekspresowej S2 (ok. 500 metrów). Zapewnia ona szybki wyjazd w kierunku autostrady A2 (Łódź, Poznań), do dzielnic południowych (Ursynów, Mokotów), Piaseczna oraz przez most Południowy na wschodnią stronę Warszawy – do Wawra, Rembertowa, a dalej trasą S17 i S8.
Dojazd na Lotnisko Chopina zajmuje zaledwie 20 minut samochodem.

Mieszkanie z obowiązującą umową najmu – doskonała propozycja dla inwestora.
Lokal wynajęty na podstawie umowy na czas określony do czerwca 2026 roku.

Kwestia pozostawienia umeblowania do uzgodnienia z zainteresowanym nabywcą.

Zachęcam do kontaktu:)

***EN***

The buyer pays no commission!

I am pleased to present to you an exceptional offer for the sale of a 2-room apartment featuring a spacious 32 m² living room with access to a large 35 m² terrace.
The interior is bright, sunny, and tastefully arranged. Wooden floors, natural light, and well-chosen colors create a coherent and comfortable space. High-quality materials and appliances are used throughout the apartment. The layout is thoughtfully designed, offering a sense of openness and order.
The apartment is located in one of the most prestigious and desirable areas of Warsaw – in the heart of Miasteczko Wilanów – a well-organized, green neighborhood with high-standard buildings and carefully planned infrastructure.

HIGHLIGHTS OF THE OFFER
  • Spacious living room with open kitchen and access to the terrace
  • 35 m² terrace overlooking greenery
  • Bright, functional interior, finished with high-quality materials
  • Intimate, monitored residential estate with a green courtyard
  • The location provides full infrastructure – nearby you'll find shops, schools, kindergartens, restaurants, green areas, and public transport.

The heart of the apartment is the spacious, well-lit 32 m² living room – a place where you’ll instantly feel at ease, whether it’s daytime or evening. A comfortable sofa, ambient lighting, and large glass doors leading to the terrace create a cozy space perfect for daily relaxation.
The kitchen with an island and granite countertop is seamlessly integrated into the living area. Top-quality built-in appliances complete the aesthetic and functionality.
Next to the large windows and the kitchen nook, there is a dining table with four chairs – a lovely spot for everyday meals with a view of the terrace and internal courtyard.
You can access the terrace directly from both the living room and the bedroom – your private zone of relaxation. Enjoy your morning coffee, read a book, or listen to the birds – all without leaving your home.
The 10 m² bedroom is decorated in calm, neutral tones and features a large bed with an upholstered headboard and two elegant bedside tables with lamps. The large windows and direct access to the terrace make it bright and welcoming throughout the day.
The spacious bathroom, finished in elegant travertine stone, is equipped with a bathtub and high-end Villeroy & Boch fittings – providing a luxurious everyday experience.
In the hallway, near the entrance, there's a built-in wardrobe system with mirrored fronts that visually enlarges the space and blends well with the overall interior design.

LOCATION
The apartment is situated in the heart of Miasteczko Wilanów – a modern and prestigious district of Warsaw.
This well-designed part of Wilanów is known for its low-rise buildings, wide streets, pedestrian zones, and full urban infrastructure.
Schools and Kindergartens within 1 km
  • Primary School No. 400 (al. Rzeczpospolitej 23B) – approx. 200 m – a modern public school with a strong reputation
  • Primary School Number One – approx. 300 m – a private school offering language and sports programs
  • The British Primary School of Wilanów (ul. Hlonda 12) – approx. 600 m – a renowned international school with a British curriculum
  • Willy-Brandt-Schule (ul. Ledóchowskiej 3) – approx. 800–1000 m – German-language primary and secondary school
  • Hero!Academy – modern kindergarten just 100 m away (al. Rzeczpospolitej 1)
Numerous other private nurseries and kindergartens (Montessori, language-based, etc.) are also available within 5–10 minutes' walking distance.
Shopping Centers and Stores
  • Royal Wilanów – stylish shopping and service center with cafés, restaurants, boutiques, fitness club, pharmacies, and a playground – approx. 1 km (15-minute walk)
  • Wilanów Park – a multifunctional retail and entertainment center with Auchan hypermarket, restaurants, and leisure zone – currently under construction, approx. 400–500 m away
  • Lidl, Żabka, Rossmann, Panda Market (Asian), bakeries, and delis – all within 100–300 m, just 2–5 minutes on foot
Note: Wilanów Park, just 400–500 meters away, is expected to open by 2028. It will include a hypermarket, shops, cafés, fitness centers, and a public park with playgrounds – significantly enhancing everyday living comfort.
Green Spaces and Recreation:
  • Park at Oś Królewska – elegant city park with walking paths, fountains, and greenery – 500–700 m
  • Wilanów Park (in progress) – over 20,000 m² of green space with sports fields, picnic zones, and playgrounds – 400–500 m
  • Ostoja Wilanów Park – semi-private community park with ponds, greenery, and walkways – 300 m
  • Botanical Garden of the Polish Academy of Sciences and Kabaty Forest (Powsin) – one of Warsaw’s largest green areas – 15–20 minutes by bike or public transport
Playgrounds and Family Attractions
  • Local playgrounds – right by the building and nearby estates
  • Karuzela Zabaw (indoor playroom) – 150 m
  • Fikołki Wilanów (large play center with zipline and toddler corner) – 200 m
  • Jurassic Park & Jordan Garden – larger recreational and play areas – 1–2 km
WHY THIS LOCATION IS SPECIAL
  • Ideal balance of urban comfort and green surroundings
  • Excellent educational and retail infrastructure at your doorstep
  • Thoughtful urban planning – wide streets, bike paths, parks
  • Close to the expressway and public transport (trams, buses) – easy access to Warsaw city center, airport, and other districts
  • Perfect for families with children, active individuals, and anyone seeking peace in a modern environment

TRANSPORTATION
This part of Wilanów is very well connected. The nearest bus stops are just 200–500 meters away.
The Imielin metro station is accessible by bus (lines 163, 217, 319) in just 7–9 minutes.
Bus line 217 also connects to the future Wilanów metro station in 15–18 minutes.
Additional lines within 600–800 meters: 116, 163, 164, 251, 317, 319, 180, 200, 139, 130, and night buses N31, N81 – ensuring convenient access to all parts of Warsaw.
Just 400 meters from the apartment, you’ll find a tram stop on ul. Branickiego (lines 14 and 16) – direct connection to the city center.
Given that most residents now use cars, a major advantage is the proximity to the S2 expressway (approx. 500 m). It offers quick access to:
  • A2 motorway (Łódź, Poznań)
  • Southern districts (Ursynów, Mokotów), Piaseczno
  • East Warsaw via the Southern Bridge – Wawer, Rembertów, S17 and S8 expressways
  • Chopin Airport – just 20 minutes by car

Investment opportunity – a perfect offer for an investor.
The apartment is currently rented under a fixed-term lease agreement until June 2026.
The matter of leaving the furniture is subject to agreement with the interested buyer.

Feel free to contact me!

















Świadectwo charakterystyki energetycznej - zapotrzebowanie na energię:

EU - użytkową (kWh/m2*rok): 68.00; EK - końcową (kWh/m2*rok): 98.43; EP - nieodnawialną energię pierwotną (kWh/m2*rok): 78.74; EC02 - Wielkość emisji CO2 (t C02/m2*rok): 0.02; UOZE - Udział odnawialnych źródeł energii w zapotrzebowaniu na energię końcową [%]: 0.00;
Nieprawidłowy adres E-mail